761 & 765 nw 1 st
Inspired by the brownstones of New York (left), townhouses of Boston (right), and culture and style of Miami, Tecela proudly presents 761 and 765 NW 1 St (building permit plans here), two townhouses each with four apartments, which have been featured in Forbes, Associated Press, ARCHITECT magazine, and Miami Herald, as well as Archello.
#littleHavanaistheamenity
Culture
Little Havana is at the heart of Miami both geographically and culturally. The neighborhood is economically diverse and famous for its waves of immigrants. It is home to venues like Marlins Park and the Tower Theater, a wide range of excellent restaurants, nightlife like Hoy Como Ayer and Ball & Chain, and the monthly celebration Viernes Culturales. And at the heart of the heart: Calle Ocho.
employment
Little Havana is close to the county's largest job centers: downtown Miami and Brickell, the Health District, Miami International Airport, and downtown Coral Gables.
convenience and mobility
The townhouses are surrounded by many conveniences, as shown by their Walk Score of 88, and many mobility options, including the Virgin MiamiCentral (formerly Brightline) train station and two Metrorail stations within a half mile, and two high-frequency bus corridors, one of which is only one block away.
Education
East Little Havana is served by public schools including:
Elementary: Riverside, Ada Merritt K-8 Center (magnet, International Baccalaureate), and Mater Academy East (charter)
Middle: Jose De Diego, Ada Merritt K-8 Center (magnet, International Baccalaureate), Young Women's Preparatory Academy (magnet, liberal arts), Mater Academy East (charter), and SLAM (charter, sports leadership and marketing)
High: Booker T. Washington (high), Young Women's Preparatory Academy (magnet, liberal arts), New World School Of The Arts (magnet), Mater Academy East (charter), and SLAM (charter, sports leadership and marketing)
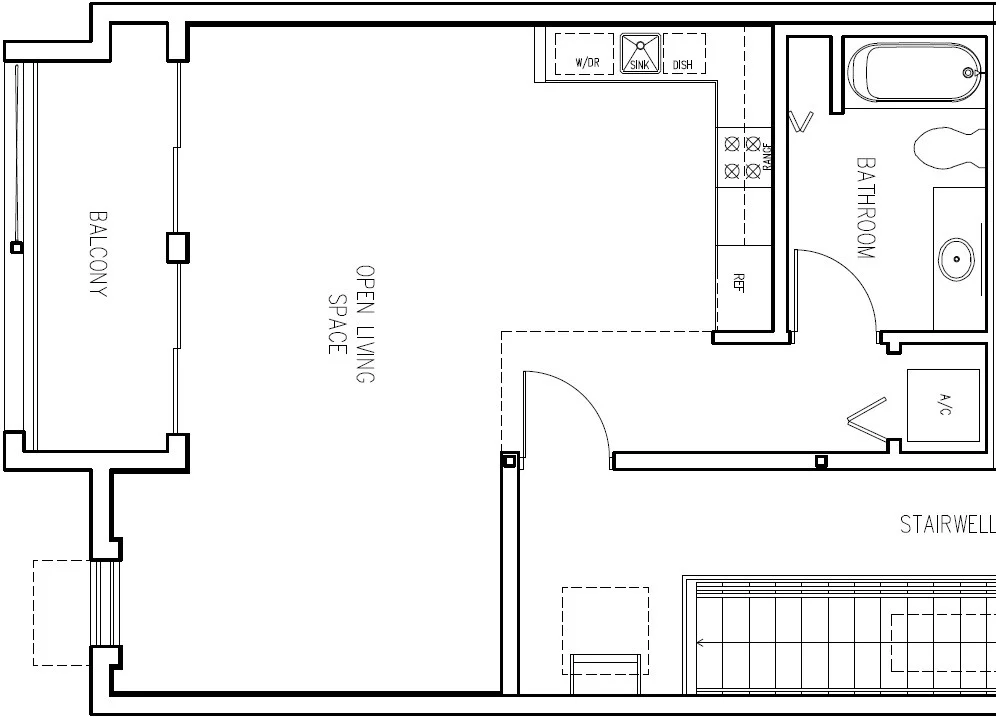
townhouses and apartments
The townhouses are designed by Jason Chandler, AIA Florida award-winning architect and Chair of the Florida International University Department of Architecture. The design draws on two global architectural traditions -- the townhouse building type and Tropical Colonial style -- and translates them into contemporary Miami.
Each townhouse, with its multi-layer facade and large balconies, is divided into apartments that feature high ceilings, polished concrete floors, custom cabinets, and quartz counter tops. Energy efficient features include LED lights and Energy Star appliances.
Studio
595 square feet, 9'+ ceiling, in-unit washer/dryer, large balcony.
1 Bedroom
617 square feet, 9'+ ceiling, walk-in closet, in-unit washer/dryer, large balcony.
2 bedroom A
1130 square feet, 13'+ ceiling, two full bathrooms, walk-in closets, in-unit washer and dryer, private back yard (750 square feet).
2 bedroom B
1211 square feet, 9'+ ceiling, den, two full bathrooms, walk-in closets, in-unit washer and dryer, two large balconies.
Fine Print
All renderings, maps, landscaping, elevations and plans may be artist's or architect's conceptions and may not be to scale. The developer/ builder/ owner reserves the right in its sole discretion to make changes or modifications to maps, plans, specifications, materials, features and colors without notice. Square footages are approximate and may vary slightly.
Rental rates, availability, deposits and specials are subject to change without notice. Minimum lease terms and occupancy guidelines apply. Deposits may fluctuate based on credit, rental history, income, and/or other qualifying standards. Additional taxes and fees may apply and will be disclosed prior to lease signing.
At Tecela, we believe that our residents deserve to be treated fairly at all times. To that end, we fully support the principles of the Fair Housing Act (Title VIII of the Civil Rights Act of 1968), as amended, which prohibits discrimination in the sale, rental, and financing of dwellings, and in other housing-related transactions, based on race, color, national origin, religion, sex, familial status (including children under the age of 18 living with parents of legal custodians, pregnant women, and people securing custody of children under the age of 18), and handicap (disability). As part of its commitment to ensuring equal housing opportunity for all individuals, Tecela will always make reasonable accommodations to its policies, and modifications to the existing premises, where necessary to allow individuals with disabilities the opportunity to use and enjoy the property. Should any tenant or prospective tenant feel they have been discriminated against by the staff at any Tecela housing community, they are encouraged to share their concerns to the contact information provided on tecela.com.
